SERVICE: architectural design & construction management
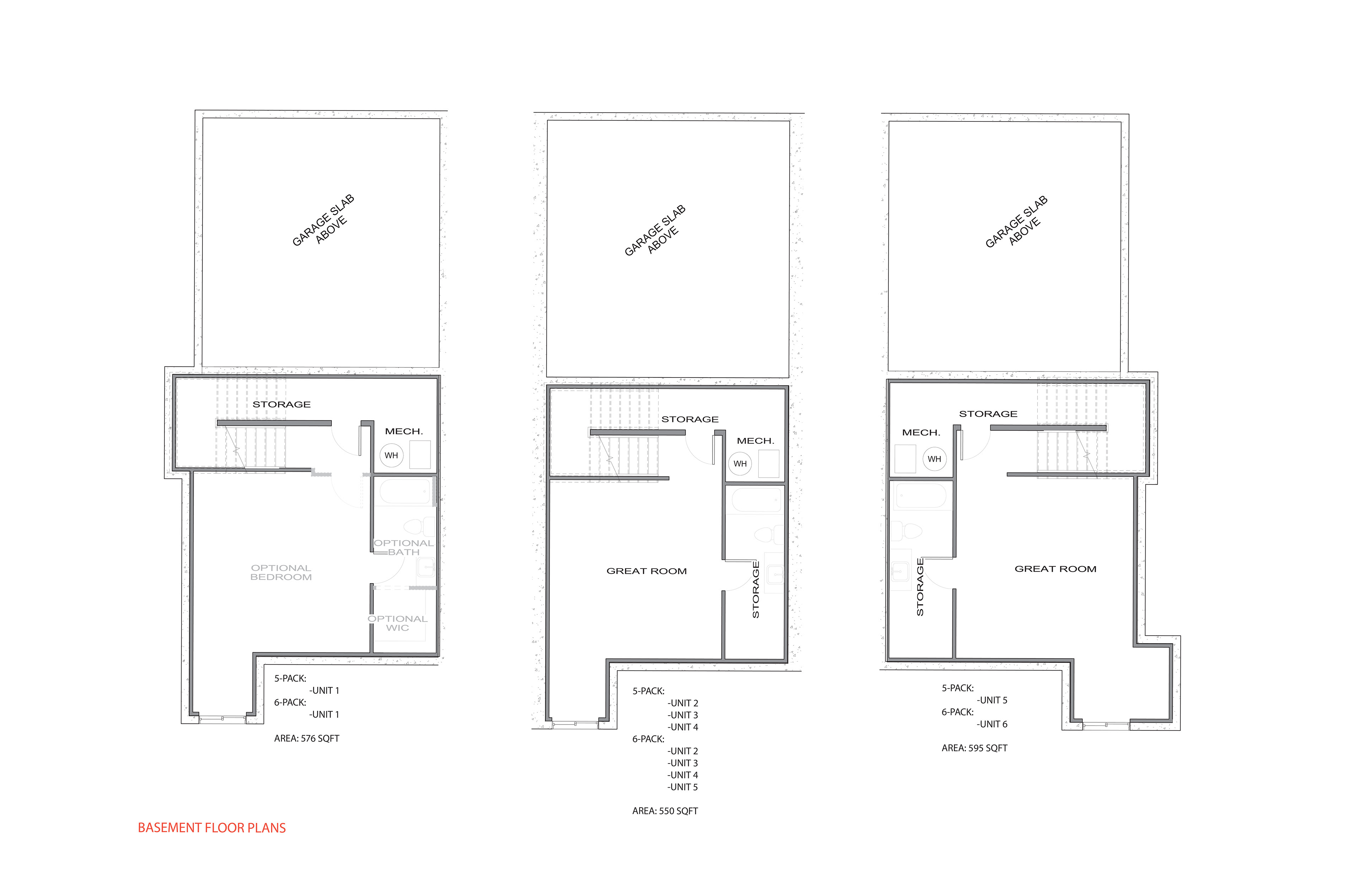
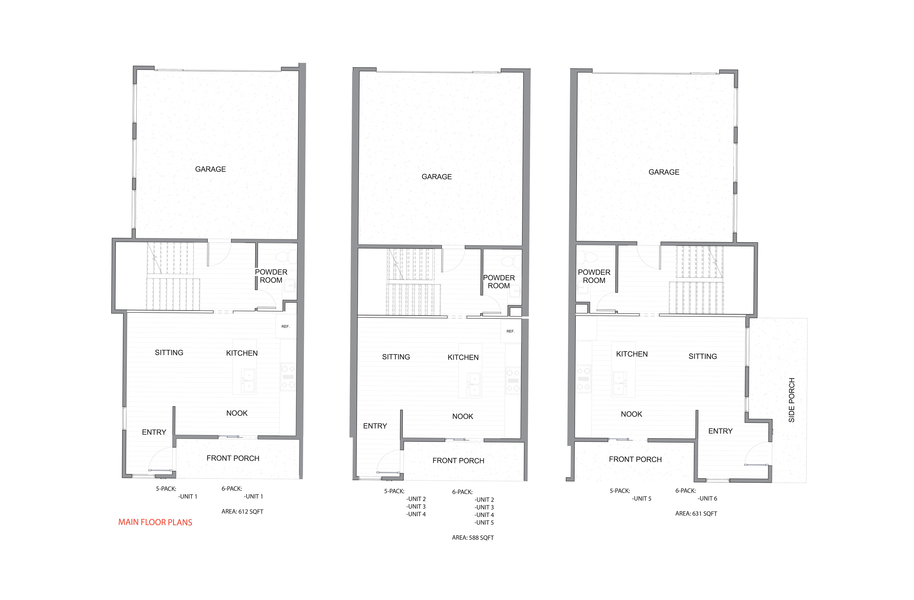
CONCEPT: 3 buildings, 6 units
PRIMARY MATERIALS: cement veneer, stucco, hardie lap
BUILDER: Tailor Built Homes
DESIGN-BUILD 2021 - for TAILOR BUILT HOMES